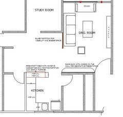
I don't want kitchen to be directly visible from living room. Keeping this in mind, I was thinking of creating a screen with bamboo work or something such that kitchen area would be extended and dining area would cease to exist (I dont need dining table). Any other idea to separate kitchen/living room is appreciated.
Now, I need to design location of shoe rack and sitting area in living room. Am just stumped. Any help is appreciated. Thanks
Rupal Shah
ARTISAN
Related Discussions
need help design 10x13.5 living room
Q
Need help in designing my living room
Q
Need help in designing my living room and kitchen
Q
Need help with living room designs for the attached blueprint
Q
Vishal Shah
Rupal Shah