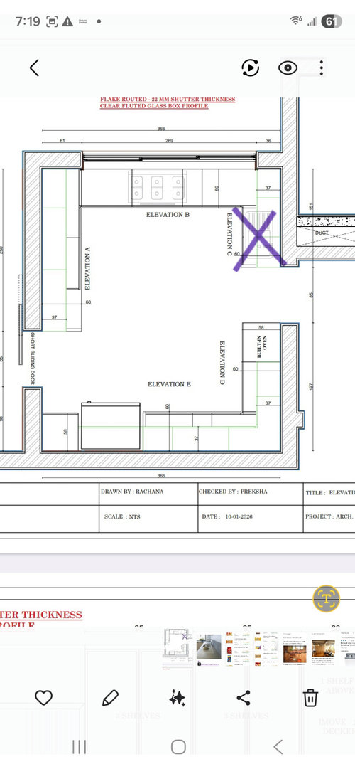
Hello. We are looking to remodel our kitchen and I need some advice. The hob will be on the left hand countertop and the sink will be on the window counter. I have an 87cm wall creating a U shape but was thinking of not adding any cabinets to make it an L shaped. In that case I would position the dishwasher on the right edge of the window counter. I will have to give up a corner cabinet and a 60cm storage as well as overhead storage for this.
What do you think will be better. To keep the current U shape or to make it into an L shape.
Tia
Related Discussions
Help needed for changing layout of living room
Q
Kitchen layout ideas
Q
Kitchen layout is good or should I change
Q
Hi , I need suggestion for rhe layout of the kitchen.
Q