What Does an Architect Do?
Find out about the multiple roles played by an architect during the construction and renovation of a building
An architect is a qualified professional who specialises in building design, is registered with the COA (Council of Architecture, India) and is authorised to get the project sanctioned from the local development authority. Hence, if a homeowner needs to construct a new home or plans to extend an existing building, then an architect has to be appointed to take responsibility for the conception, execution and completion of the building design. This article will give you a clear insight about the different responsibilities and roles played by an architect.
2. Creates concept drawings
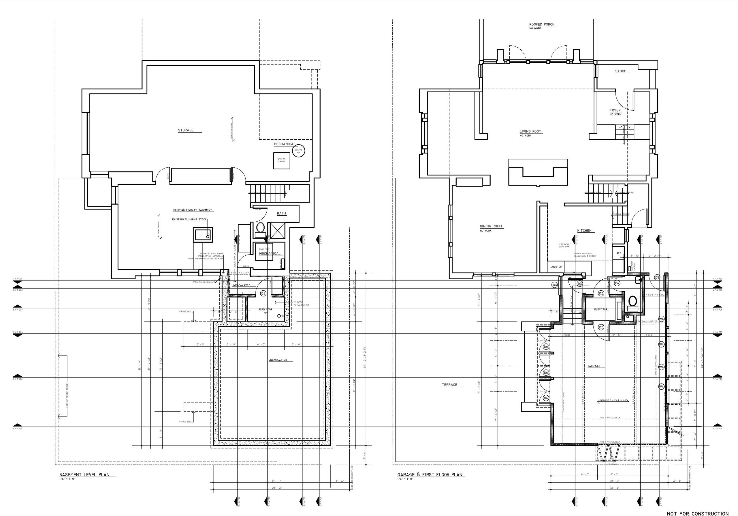
- Once the terms and conditions of the architect are agreed upon, the architect will create presentation drawings, concept sketches and a preliminary layout as per the homeowner’s requirements.
- The concept drawings are prepared with the help of initial sketches, just as you see in the image above or with CAD (computer aided design) drawings. The architect may redesign the plans till an efficient layout is achieved to the satisfaction of the homeowner.
- The architect also submits 3D rendered views to give a clear picture of the proposed building to the homeowner.
- Once the layouts and elevation are finalised, the architect will now bring in a structural engineer who will design the structure and reinforcement details of the building, taking into account all the load factors, to ensure the safety of the building.
3. Gets the project sanctioned
The layout of the building has to abide by the local building laws and regulations.
The layout of the building has to abide by the local building laws and regulations.
- It is the duty of the architect to submit the ammonia prints of all the architectural drawings to the local development authority so that the project can get approved and sanctioned. Make a note that the construction of the project cannot start until it is sanctioned by local development authorities, such as DDA (Delhi Development Authority), KMC (Kolkata Muncipal Corporation), PMC (Pune Muncipal Corporation) and so on.
4. Furnishes working drawings
After the project gets sanctioned, the architect has to furnish working drawings for the site. These will include drawings such as foundation details, brickwork details, position and measurements of door and windows, plumbing layouts, electrical layouts, specifications of the materials used and so on.
Note: Some architects move a step forward to work as interior architects, where they design and detail the interiors of the home.
If the scale of the project is big, landscape architects can also be introduced to work out the landscape of the site.
Looking for civil engineers? Find them here
After the project gets sanctioned, the architect has to furnish working drawings for the site. These will include drawings such as foundation details, brickwork details, position and measurements of door and windows, plumbing layouts, electrical layouts, specifications of the materials used and so on.
Note: Some architects move a step forward to work as interior architects, where they design and detail the interiors of the home.
If the scale of the project is big, landscape architects can also be introduced to work out the landscape of the site.
Looking for civil engineers? Find them here
5. Co-ordinates with contractors
The architect plays a key role in every stage of construction of the home. The construction work of the building is divided into different sections and handed over to various contractors for the civil work, plumbing, flooring, electricals, HVAC (heating, ventilation and air conditioning) and so on.
Read more:
6 Key Questions to Ask Before Hiring Your Architect
Busted! 5 Myths About Hiring an Architect
Tell us:
Have you recently constructed a home? What was the scope of work of your architect? Share in Comments below.
The architect plays a key role in every stage of construction of the home. The construction work of the building is divided into different sections and handed over to various contractors for the civil work, plumbing, flooring, electricals, HVAC (heating, ventilation and air conditioning) and so on.
- The architect will help the homeowner select and finalise the contractors for the project. Alternatively, the homeowner can select contractors whom they are comfortable to work with or have worked with before.
- Additionally, the architect and their team have to co-ordinate with various consultants working on site so as to ensure smooth construction at site.
- The architect makes regular site visits to check the progress, clarify the working drawings to the contractors and ensure good quality of work. The construction flaws (if any) are identified and have to be rectified by the contractors.
Read more:
6 Key Questions to Ask Before Hiring Your Architect
Busted! 5 Myths About Hiring an Architect
Tell us:
Have you recently constructed a home? What was the scope of work of your architect? Share in Comments below.








The primary role of an architect is to create a functional and aesthetically pleasing space that adheres to the requirements and vision of the client.
- The first step involves a one-to-one meeting between the architect and the homeowner so that the architect can understand the homeowner’s actual requirements after detailed discussions.
- During these meetings the architect will also spell out their fee and payment structure, the scope of work, level of involvement in terms of site visits and the time frame required for the total completion of the work.
Take a look at the Houzz directory of architects