Houzz Tour: A Designer's Moody St Petersburg Flat
A Picasso reproduction served as the inspiration for this flat's bold colour scheme – and screens the TV from view
Interior designer Arina Volkova bought a flat on the top storey of a building so that she would be able to look out over the picturesque roofs of St Petersburg, rather than neighbours’ windows. The interior colour scheme was suggested by her favourite Picasso painting, and she filled the space with not only modern objects, but also family heirlooms ranging from her grandmother’s sculptures to a vintage sewing machine table, which has followed her from flat to flat for nearly twenty years.
Need a pro for your interior design project?
Let Houzz find the best pros for you
Let Houzz find the best pros for you
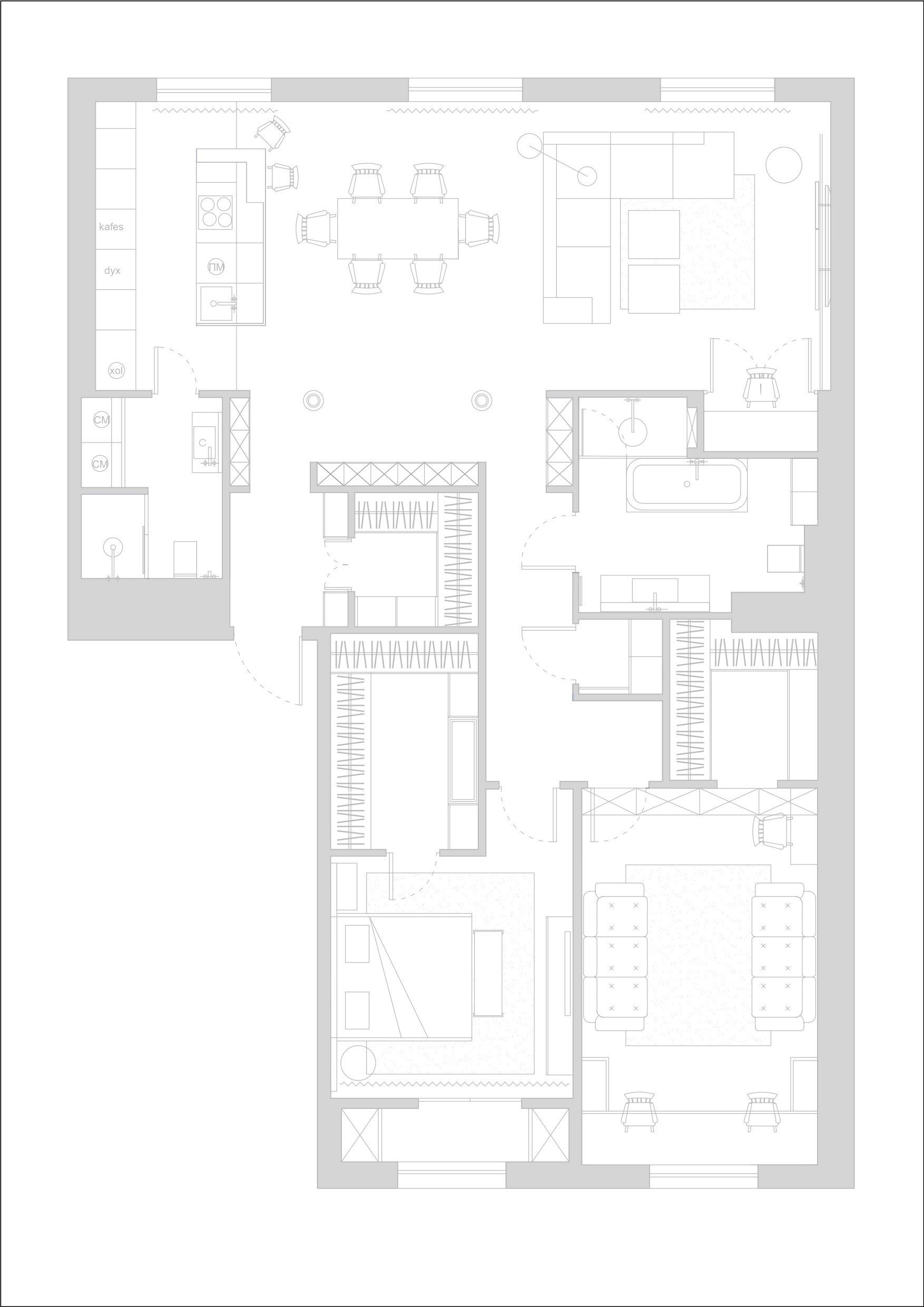
Layout
Before. The flat was originally unfinished, with cement exposed. Its initial setup made it possible to completely change the layout. Volkova borrowed space from the hallway to expand the social areas and walk-in closet, and combined the kitchen and living room. They often entertain, and she wanted to carve out as much space as possible for evenings with friends and family. She created a second closet by the nursery, and added a small utility room to the layout.
Before. The flat was originally unfinished, with cement exposed. Its initial setup made it possible to completely change the layout. Volkova borrowed space from the hallway to expand the social areas and walk-in closet, and combined the kitchen and living room. They often entertain, and she wanted to carve out as much space as possible for evenings with friends and family. She created a second closet by the nursery, and added a small utility room to the layout.
The entrance is very small, but highlights the artistic character of the interior right from the threshold. The walls and ceiling are finished in blue decorative plaster: In contrast to the dark entrance, the kitchen-living area with its bright finishes seems even more spacious. A mirrored door to the right of the entrance, which leads to a walk-in closet, visually expands the space.
On the walls is a gallery of photographs of classical statues, framed with ordinary Ikea frames.
The angled outer wall in the living room scared estate agents off, but Volkova really liked it: the unusual geometry gives the space the feel of a Parisian loft. The engineered wood flooring in a herringbone pattern also added a French touch, as did the plaster ceiling rose that accentuates the light fixture over the dining table. They added plaster directly on the ceiling to avoid lowering it. All of the ventilation and air conditioning systems run over the hallway and closet.
The project’s colour scheme was inspired by this reproduction of Pablo Picasso’s ‘The Absinthe Drinker’. Not only is the painting a bold feature in the interior, but it also screens the television from view. “I am always accused of putting a lot of grey into my projects. This project’s colour scheme also builds on grey tones, but the painting suggested terra cotta and wine shades,” Volkova says.
Find a designer from the Houzz directory to design your home
Find a designer from the Houzz directory to design your home
Volkova had earmarked the niche to the right of the TV area for her work space, but during the renovation it was already obvious that things would have to be squeezed together. Now the piano, which Volkova’s daughters play, stands here decorated with a work by artist Alexander Votsmush.
It was important to Volkova to put a bookshelf in the living room to house the books she had inherited from her grandmother. The glass-fronted bookcases were made to order. Volkova found the vintage European light at a local showroom: in spite of the pandemic, the company was able to deliver it in only three weeks.
Volkova raised the kitchen onto a platform, so that she could connect the island to water and electricals and create a walk-in shower in the bathroom on the other side. The matte white MDF kitchen fronts are matched with American nut veneer inserts and a ceramic countertop.
“The glass cabinet doors are a solution that clients never ask for: clients are usually afraid of mess. But during the photo shoot, the stager did not even touch my dishes: it turns out that all you need for a pretty vignette is to buy dinnerware all in one colour,” Volkova says.
“The glass cabinet doors are a solution that clients never ask for: clients are usually afraid of mess. But during the photo shoot, the stager did not even touch my dishes: it turns out that all you need for a pretty vignette is to buy dinnerware all in one colour,” Volkova says.
Volkova and her family chose a flat on the top floor, “so that we could see the roofs over St Petersburg, and not our neighbours’ windows.” This is why the windows in the kitchen-living room have no day curtains, which are common in Russia. Instead, Volkova gave them classic drapes. These do not get in the way of the view, but serve as a visual accent.
The dinner table was one of the most difficult aspects of the project. It was put together in parts, with the table top and legs sourced separately. “I would not have recommended this to my clients, but I thought I could manage it,” Volkova says. “I ordered the legs in Turkey: the manufacturer promised to carve out and paint the supports. It was quickly clear that they would not be able to paint the legs, and they gave me a partial refund. When the legs were finally delivered after a few months, it turned out that they were terrible quality: our craftsman had to prime the surface something like 10 times before we could paint it. In the end we got a decent result, which we then rounded off with the tabletop – but at what cost.”
The wall behind the bed is finished in solid wood: “I always liked projects that use old doors and windows as features in the interior. I wanted something in this style, but more tidy,” Volkova says. Another painting by Alexander Votsmush completes the decor. Its black accents are picked up in features of the decor.
The kids’ room was designed for the twin girls, so all of the objects are identical, and the decor is symmetrical. There is one table with two workstations for studying stretched out along the windows. An adjacent closet provides storage space. “To be honest, it’s hell in there, but the room itself looks decent,” Volkova says.
The main bathroom is finished in stone- and wood-look porcelain stoneware. The splashback is the same brick-look tile they used in the living room. The various installations in the room created a niche, which was turned into a 40-centimetre-deep closet for towels, bath robes and cosmetics.
The guest bathroom is cavernous and bohemian: The draping, the classical mirror and the carpet on the floor give it character. When the designer was a child, this carpet hung on the wall in the family flat. Volkova bought the 1930s light fixture at a flea market in Paris. Another item with a long history is the sewing machine stand. “I found it in a garbage dump in 2004,” Volkova says. “At first it supported a small table, which still had a rotary phone on it. Afterwards it turned into a desk, and it now serves as a vanity. It is symbolic that this antique support has travelled with me to every flat, while modern things quickly go out of order.”
Read more:
Lonavla Houzz: A Holiday Home Inspired by a Swiss Chalet
Tell us:
What did you like most about this home?
Read more:
Lonavla Houzz: A Holiday Home Inspired by a Swiss Chalet
Tell us:
What did you like most about this home?





















At a Glance
Who lives here: Arina Volkova and her family
Where: St Petersburg, Russia
Size: 135 square metres
Designer: The flat’s owner, Arina Volkova
One craftsman, a friend of the owner, carried out the entire renovation. “Like all clients, we wanted it completed by September 1, and on August 31 the beds were delivered and we really moved in,” Volkova says.