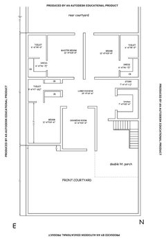
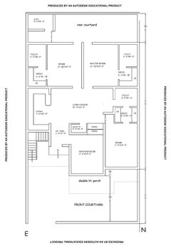
need help to get design for my new house
12 years ago
Featured Answer
Sort by:Oldest
Comments (14)
- 12 years ago
- 12 years ago
Related Discussions
Need help for my first home 400 or 430 sq ft .New home small 400 sq .ft
Comments (19)How do I make a small space look bigger ?? mirrors to add is one option ? can you suggest more options pls How can we make a small space look bigger ? 1. same colour pastel colors 2. some addition of reflection or mirrors 3.Having small frames on wall or minium on wall. 4.Having oine wall painted / with wallpaper draker than others what are other option pls suggest for my place ?...See MoreNeed help in designing exteriors for my new house
Comments (1)Please save the floor plans as 'jpeg' file in order for them to show up....See Moreneed help for my new home design
Comments (2)There are a number of factors that will dictate the design of your house. The first step is to visit the local building department to find out the restrictions for your lot. Do you need to set back the house from the property lines? Is there a maximum site coverage that the jurisdiction allows? For example, in San Clemente, California you can only cover 50% of your lot with your house. Do you need to include parking on your site? Most cities in the USA require 2 parking spaces on the site. The shape of the lot and the access to the lot as well as any potential views, and even the location of the sun and the prevailing winds will impact your design. Find out the information that I listed above and post it with a dimensioned site plan and you may get some great design suggestions. Another option is to look for a local architect using houzz.com.......... Good luck and have fun...........See Moreneed a new design for my home for first floor.
Comments (2)This is my ground floor plan and some renovations are planned in ground floor ,that is attached too,please help me with me to draw the first floor plan(3rooms-1master bedroom with attached bathroom,and 2 rooms only a sitout too)...See More- 12 years ago
- 12 years ago
- 12 years ago
- 12 years ago
- 12 years ago
- 12 years ago
- 12 years agolast modified: 12 years ago
- 12 years ago
- 12 years ago
- 12 years ago
- 12 years ago



Lampert Dias Architects, Inc.