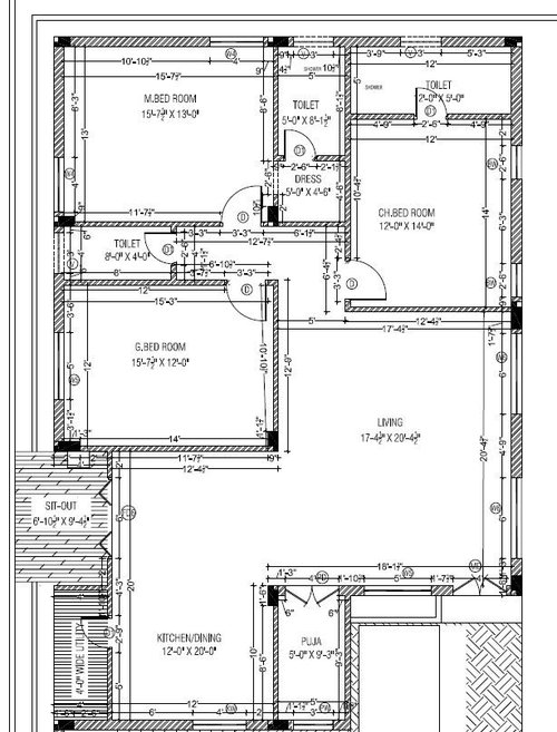
To add staircase in this area ,to make it duplex. if I need rise of 5 ot 5 1/2 inches is it possible? Second picture is current plan, we are planning to remove that bedroom and make it duplex. Any other suggestions to make it duplex will also help. Ceiling Ht - 10ft
I am planning on adding staircase, need suggestions
TM Co. Designs
TM Co. Designs
Related Discussions
"need to design space under the staircase"
Q
I NEED A PLAN.. AS PER VASTU
Q
suggestions for 1st floor plan
Q
Suggestions/ improvements in the plan ? and need help with staircase
Q