Hi there,
Wondered if anyone would be able to help me on the below - i am getting this plastered in a few days so need to make my changes ASAP!
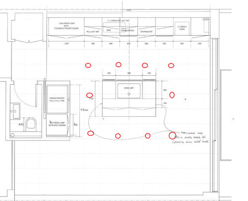
I have carried out a house refurb and have the below kitchen lighting put in by the builders, however it looks as though there is a big gap between the last run of lights and the sliding doors.
Measurements builders have given for the lighting is the below.
1500 from light on left to wall - 1500 from light far right to the wall
960 between each light
Would anyone change these or put another run of 3 downlights in the same 960 distance away close to the sliding doors?
Any help would be much appreciated!
Jack
A V Design Studio
Related Discussions
Need help in open kitchen design
Q
Need help for designing the light in my living cum dinning room
Q
Need help in designing my kitchen
Q
need help with kitchen designing
Q