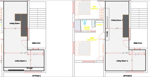
The Buiding itself is a challenge as its narrow space 2 option have been shown here which layout shall be the best or is their any other option rather than these 12
theres hardly any difference between op1 & 2 as layout remains same loose furniture can be bought later 1st you can take a call on design & planning of fixed furniture
Shades By Shweta
Chandan KOriginal Author
Related Discussions
Need suggestions for living room layout.
Q
Help with Living room layout
Q
living room furniture layout
Q
layout for a long narrow living room
Q