Need views regarding living room: seating, dining, tv unit, swing, etc.
Dining Table can be compromised and need bigger space in middle.
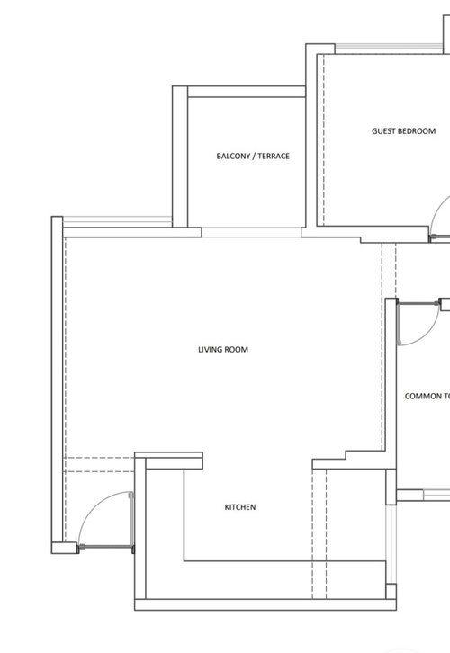
Plan attached.
Sizes?
Living Room: 19.44 x 12.88 sq.ftKitchen: 10.09 x 7.95 sq.ft
i need help in designing my living room divider area.
Q
Need help for designing living room
I need help to design my Living room.
Need help in designing the living room
See the Living Room reference If you need more Consultation with 3d views Pls contact us
Hi,
You may look into the planning of the living room based on these options.
Cornerstone Designs 888.4851.444 Studio
Viraj ChataneOriginal Author
Related Discussions
i need help in designing my living room divider area.
Q
Need help for designing living room
Q
I need help to design my Living room.
Q
Need help in designing the living room
Q
Dream Design
Solids and Voids