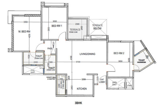
Layout ideas for Dinning cum living room
7 years ago
Featured Answer
Sort by:Oldest
Comments (10)
- 7 years ago
Related Discussions
Need help for my new drawing cum dinning room
Comments (7)You will need space to walk and for your feet if you turn the chairs around - if you put a divider in you will block the view from the dining table out to the balcony - and thus make the kitchen and dining room both have no view ! So if you keep it open, the natural light can get through !...See MorePlease suggest ways to decorate this living cum dining room.
Comments (6)so much clutter on tv panel. keep minimal on tv panel. get glass door for puja cabinet. remove all the wall photos. put sheer curtains.. white curtains would make the room look as bigger. swap dining with sofa and...See MoreCan I get some advice to plan 9*14 living cum dining room.
Comments (11)Hi , I understood what you meant. Seeing the layout you can utilize the wall adjacent to toilet as a position of tv unit and keep your sofa in front at least 7 ft away. your dinning table position should be at the terrace side and considering the size of the room it should be 4 seater. you can utilize the wall opposite to your kitchen for decoration ..book shelf ..etc. If you want a suitable 3d design to be done you can contact me on my mentioned contact details. Regards...See MorePlease suggest some pro tips to decorate this LIVING cum DINING Room!
Comments (1)Hi Biplab! It seems you're asking "professionals" to do their job for free! This is a complete home design, not just a design dilemma. Request you to hire someone locally near your place who can personally visit the site and can help you out in a comprehensive way! Cheers and good luck! 🙂...See More- 7 years ago
- 7 years agoUser thanked Cornerstone Designs 888.4851.444 Studio
- 7 years ago
- 7 years ago
- 7 years ago
- 7 years ago
- 7 years ago
- 7 years ago




Cornerstone Designs 888.4851.444 Studio