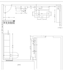
I need help with tv unit and living room design.
13 years ago
Featured Answer
Sort by:Oldest
Comments (8)
- 13 years ago
Related Discussions
Need help with TV unit design
Comments (8)Thanks, for the reply. Yes, I am hoping to feature the mdf on the wall. I am not sure like which one to choose and how to make it look better. I want to make use of the entire wall with cabinets. But, I am open to other options also. There is also a pillar next to the wall on the left side. I also want to make use of the space between pillar and wall (like glass cabinets). Needs your inputs, if you can share some images, that will be great....See Moreneed seating arrangement with TV unit for my living room
Comments (9)You can orient your living room seating, and create a partition which does not go all the way to the ceiling: this enabling a visual barrier, space for tv unit and other display pieces and still have the openness and have large space still intact. Contact for further dialogue. And all the best!...See Morewhere should I keep the tv unit in living room, please help?
Comments (8)Hi Kiran, Before you place any furniture here, you should rethink the existing layout. I would eliminate the 3 internal walls around the puja room, and convert the areas of the living, puja, dining and kitchen, into a singular larger space. This is simply for better air circulation and overall aesthetics of the flat - to make it feel larger. You will now have an open kitchen - which can be shut by either a glass sliding folding partition, or with a half wall with a breakfast bar. You can use furniture smartly to create privacy for individual areas. You can also change the locations of the doors to the bedrooms, by not having them from the dining space, but from the passage outside the bathrooms; so that a larger table right in the centre with a dining credenza by one of the walls, thereby making the dining space a bit enclosed and not accessible from 3 sides. To answer your main question, you can have the television on the common wall between the living and bathroom (5'x8'); an L-shaped sofa can be placed along the same wall as the entrance door. Hope this helps! G...See Moreguest bedroom TV unit..need some designs fo the storage on the TV Wall
Comments (0)hi, I am placing a wall mounted TV in my guest room where I want to utilise the TV wall and make some storage like chest of drawers. I don't have too much wardrobe space in the guestroom so decided to have some storage in the form of chest of drawers. looking for some contemporary designs. pls assist. TIA...See More- 13 years ago
- 13 years ago
- 13 years ago
- 13 years ago
- 13 years ago
- 13 years ago

Sponsored
More Discussions







bhaktijhaveriOriginal Author